Luogo: Roma Eur
Committente: Eur S.p.A.
Ruolo: progettazione definitiva degli impianti di climatizzazione
|
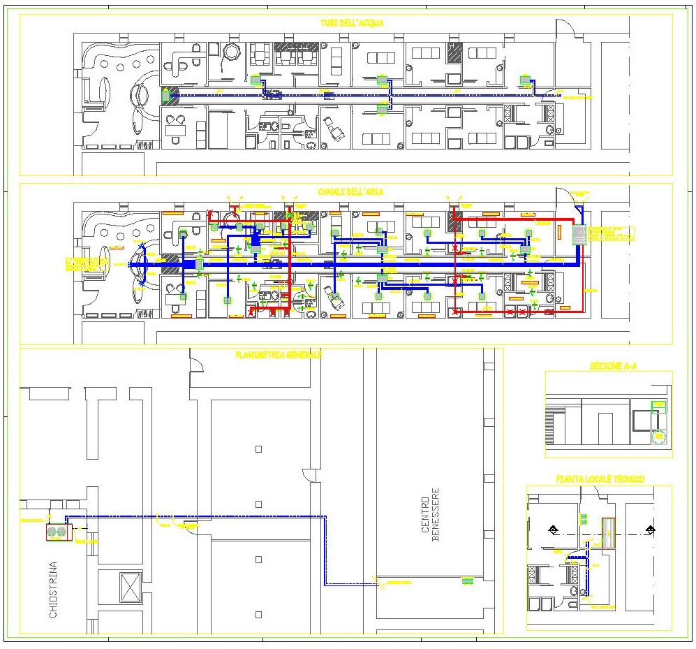
La distribuzione dell’aria in ambiente avviene con diffusori induttivi ad effetto elicoidale. La produzione dell’acqua refrigerata e calda si attua con una pompa di calore a ciclo reversibile, raffreddata ad aria.

|
|